Need more detail related to your fuel pump observations. When turning the ignition switch to "run", if you can even hear the fuel pump, it will only run for two seconds, then turn off. It will resume running when the Engine Computer sees engine rotation, (cranking or running). During those times there's too much starter noise or engine noise to hear the fuel pump.
The Engine Computer CAN be involved in this problem because the voltage regulator is inside it, but that is a totally different part of the system from the fuel pump. The only thing both systems have in common is the automatic shutdown, (ASD) relay. That's what the Engine Computer turns on for those first two seconds, and again with engine rotation. That relay sends 12 volts to the alternator field, ignition coil(s), injectors, oxygen sensor heaters, and fuel pump or a separate fuel pump relay. If the engine runs, which it must do for only the "Battery" gauge to be low, the ASD relay must be turning on, and the fuel pump must be working. If either was not working, you'd have a crank / no-start problem. You wouldn't even get to the point the charging system turns on.
At the mileage you listed, worn brushes inside the alternator are a real good suspect, and they aren't terribly difficult to replace. Of course a new or rebuilt alternator would also solve that. A used one could have worn brushes too, but the biggest clue is they always start out as an intermittent failure to charge, that gets progressively worse over weeks or months. Worn brushes rarely fail permanently instantly.
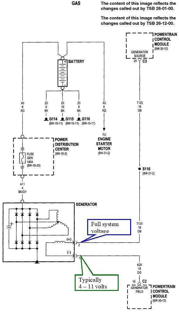
The fastest way to start this diagnosis is by taking three voltage readings, but these must be done with the engine running, (so the ASD relay has the alternator powered up), and while the no-charge is occurring. The large output wire must have full system voltage. during the no-charge condition, expect to find close to 12.6 volts or a little less. When the system is working properly, it will be between 13.75 and 14.75 volts. This voltage must always be exactly the same as battery voltage. If it goes real high and you still have a no-charge at the battery, there's a blown fuse in between or a burned fuse link wire, depending on the model year. A fuse will be very large and will be bolted into the fuse box.
I'm not sure which are the blue and green wires in the alternator's small plug, but at this time the colors are irrelevant. You must back-probe through the rubber weather seals alongside each wire to take the readings. They will have no meaning if taken with that connector unplugged. The dark blue wire must have full system voltage. Again, expect to see around 12.6 volts. If that is missing, it is usually due to improper testing that has burned out a copper trace inside the Engine Computer. (There's an easy work-around rather than replacing the computer). What's really important is what you find on the dark green wire. It must be less than what you found on the dark blue wire, but not 0 volts. You can expect to find between 4 and 11 volts. The lower that voltage is, the harder the voltage regulator is driving the charging system.
If you have battery voltage on the dark blue wire and 0 volts on the dark green wire, the brushes are worn. The only other way to have 0 volts is if that dark green wire was shorted to ground, but that would full-field the system, then you'd have a serious over-charge condition.
That voltage on the dark green wire is almost always the one that tells us where to go next. Since Joe already started helping you, I'll wait on the side in case you need my wondrous wisdom.
Images (Click to enlarge)
Nov 17, 2022 at 4:21 PM