Okay, since you have 12v to the smaller wire on the starter with the key in the start position and the larger wire comes from the battery positive and should always have 12v, then we have a connection issue that is likely causing this.
First, take a look through this link. It explains what happens when everything turns on until the key is turned to the start position. Take a look:
https://www.2carpros.com/articles/everything-goes-dead-when-engine-is-cranked
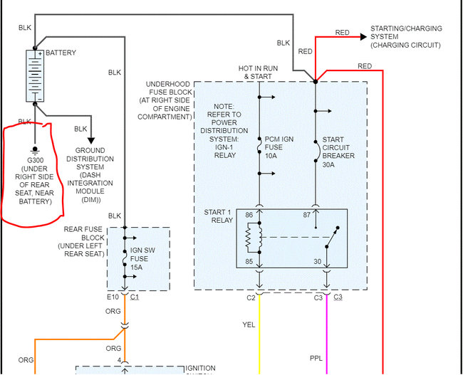
Now, since the battery is new and checks good, then make sure battery terminals are clean and tight. Next, check and make sure the ground wire that goes from the battery negative terminal to the floor near the battery on the right hand side of the rear seat.
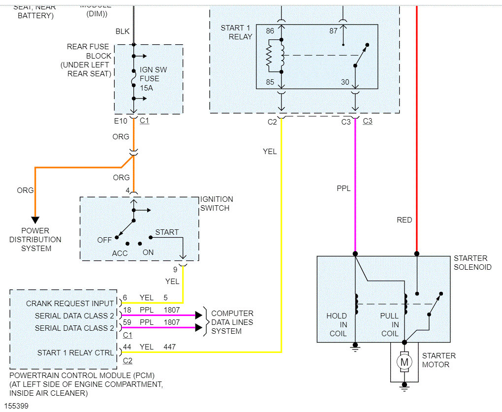
I attached a two pics below which show the entire starting system schematic. I circled the ground that I am referring to.
Check that and let me know what you find.
Take care,
Joe
Images (Click to enlarge)
Apr 27, 2020 at 7:52 PM