Air Conditioner Compressor?

1986 CADILLAC FLEETWOOD BROUGHAM
54,000 MILES • 5.0L • V8 • 2WD • AUTOMATIC
Avatar
JOED5901
  • MEMBER
  • 1 POST
I have the car listed above Fleetwood Brougham. The Air conditioner blows warm air. I checked the compressor to see if the clutch would open and shut with a power probe I hooked up to the battery and ground the 3rd lead. I am getting voltage from the wire that goes to the two-prong connector that is on the A/C compressor. It reads a little bit more than 10 volts but when i touch the two prongs on the connector on the compressor the clutch does not engage! Am i to assume that the compressor clutch is no good or even the compressor itself? I tried to see if there was a fuse for it and I couldn't pull the fuse box down that is located below the steering column to the left of it. There is a fuse for the air conditioner compressor, right?
Jul 30, 2022 at 3:05 PM
Advertisement
Avatar
STEVE W.
  • CERTIFIED EXPERT
  • 15,113 POSTS
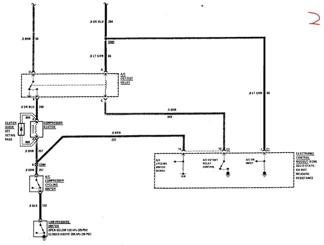
Yes, there are two fuses in the A/C system, both in that fuse block. One is the A/C fuse while the other powers more than just the A/C. The second one is easy to test, if the hazard lights and stop lamps work, it is good. The other one is only the A/C clutch. Testing is somewhat simple. Get a test light, preferably an old style bulb unit as they can at least draw some load. Now go to the A/C clutch relay, it's on the right rear corner of the engine near the valve cover. It will have a dark blue, large brown, small brown and a light green wire. To test it you just unplug it, now with the key on you should find power with the test light at the large brown wire. Now place a jumper wire across the large brown and the dark blue, Next go to the compressor clutch connector and check at the dark blue wire for the same voltage you had at the relay, IE the light should turn on.
Now take your power probe and use it to check for continuity to ground on the brown wire at the clutch connector. An open ground could be a bad connection at the compressor cycling switch or at the low-pressure switch, both should test as normally closed if the system has a freon charge in it. If it is open then test those switches, or jumper them for the testing.
To test the A/C relay control you need the key on, A/C to max and set to a lower temperature. Now go to the clutch relay and check for activation of the relay. You can also apply a ground to the smaller brown wire and if the control voltage is there the relay should click on.
I would also suggest putting a Freon gauge set on the system as that will prevent the system from operating as well. Just be aware that unless that system has been retrofitted it uses R-12 and many of the newer gauge sets will not attach to those fittings and none of the off the shelf "recharge kits" will work with it.

https://www.2carpros.com/articles/how-a-car-air-conditioner-works

Jul 30, 2022 at 7:00 PM