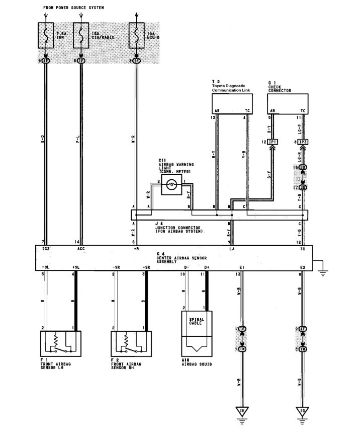
My airbag check light does not light up when I've turned my key to the utility position. I am trying to pass a provincial inspection and they are failing me on this. I took apart the dash and pulled out the module that houses the airbag light, tested the right bulb that should illuminate the airbag warning and it seems to work fine with a battery test.
I then read that I could possibly diagnose the issue by shorting out terminals on my diagnostic plug under the steering wheel. I did that (shorting terminals E1 and TC which should give me a code for airbag issues with the airbag light blinking in a certain pattern) and the light still did not illuminate. However the "cruise" light began to flash continuously, and according to the code (if the "cruise" light gives the same signals as the airbag light) that could mean either a problem with the battery or a problem with the center airbag sensor assembly.
Can I use this blinking cruise light as a diagnostic indicator for the airbag system? What other issues could this be? Is it safe to access the centre airbag sensor assembly?
I then read that I could possibly diagnose the issue by shorting out terminals on my diagnostic plug under the steering wheel. I did that (shorting terminals E1 and TC which should give me a code for airbag issues with the airbag light blinking in a certain pattern) and the light still did not illuminate. However the "cruise" light began to flash continuously, and according to the code (if the "cruise" light gives the same signals as the airbag light) that could mean either a problem with the battery or a problem with the center airbag sensor assembly.
Can I use this blinking cruise light as a diagnostic indicator for the airbag system? What other issues could this be? Is it safe to access the centre airbag sensor assembly?
Oct 7, 2014 at 9:51 AM























