tachometer not working

1992 MITSUBISHI 3000GT
Avatar
LAZYRON007
  • MEMBER
  • 1 POST
Electrical problem 6 cyl All Wheel Drive Manual 120000 miles

Hey. Just bought a '92 Mitsubishi 3000GT VR-4 which is great shape except the tachometer does not work. When you start the car it is at 0 RPM and stays there. I read up a lot about it on the internet but can't seem to find a definitive answer. What is your recommendation on how should I go about fixing it?
Feb 17, 2010 at 10:44 PM
Advertisement
Avatar
STRAILER
  • CERTIFIED EXPERT
  • 53,855 POSTS
Hello,

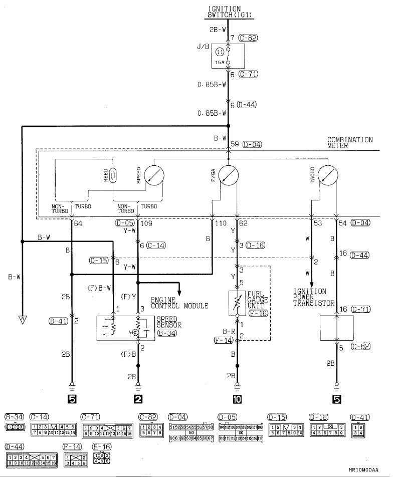
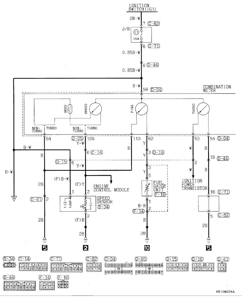
It sounds like you have an ignition transistor that is out, here is a wiring diagram (BELOW) so you ca do some testing. Here is a guide to show you how

https://www.2carpros.com/articles/how-to-use-a-test-light-circuit-tester

and

https://www.2carpros.com/articles/how-to-use-a-voltmeter

Please let us know if you need anything else to get the problem fixed.

Cheers, Ken


May 17, 2017 at 5:47 PM