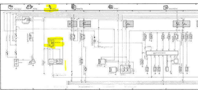
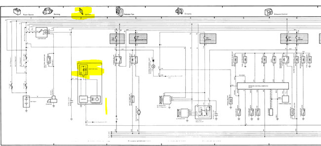
Shut off while driving, tested for spark and no spark at any of the four plugs. Plugs are good and plug wires distributor rotor and cap are fairly new, new battery. Fuses are all good, I have years of mechanic experience I just can’t find a good or free ignition wiring schematic so I can trace the problem down to where it’s failing.
Thanks for any help,
Chris
Thanks for any help,
Chris
Jan 15, 2023 at 2:27 PM

